Kiến trúc Chuyển hóa luận tại Expo ’70 và thực tại phũ phàng
Xung đột giữa lý tưởng và thực tế. Khi bữa tiệc mê man của Expo ‘70 đi đến hồi kết cũng là khoảnh khắc mở ra kỷ nguyên khủng hoảng, chủ nghĩa anh hùng của kiến trúc Chuyển hóa luận cũng trở thành nạn nhân.

Bối cảnh Neo-Tokyo trong phim “Akira”
Kaneda lao đi trên chiếc mô tô công nghệ cao giữa một thành phố hỗn loạn, nơi những băng nhóm đua xe và các cuộc nổi loạn diễn ra mỗi ngày. Băng nhóm Capsule của Kaneda chiến đấu không ngừng trong lòng Neo-Tokyo, một đô thị mọc lên trên vịnh Tokyo, được bao quanh bởi những siêu cấu trúc khổng lồ, những tòa tháp rực sáng đèn neon, cùng những cây cầu chằng chịt vươn cao giữa bầu trời.
Hình ảnh đầy mê hoặc này chính là bối cảnh trong “Akira”, bộ truyện tranh mang tính biểu tượng toàn cầu của Katsuhiro Otomo, ra mắt vào năm 1988. Không chỉ đơn thuần là một tác phẩm manga, “Akira” đã giới thiệu với thế giới một tầm nhìn mới về tương lai hậu công nghiệp đầy hỗn loạn, một viễn cảnh sau này được biết đến với cái tên Cyberpunk.
Những tòa nhà to lớn vươn cao như những gã khổng lồ thép, những cỗ máy cơ khí công nghiệp trôi nổi ngoài đại dương, những công trình nhân tạo mọc lên như một thứ virus đô thị… tất cả đã chiếm lĩnh trí tưởng tượng của văn hóa đại chúng Nhật Bản vào thập niên 1980. Nhưng nếu nhìn lại nguồn gốc của những hình ảnh này, ta sẽ thấy một sự kiện có sức ảnh hưởng mạnh mẽ, Triển lãm Thế giới – Expo ‘70 tại Osaka.
Lễ hội này không chỉ là một cuộc triển lãm kiến trúc và công nghệ hoành tráng mà còn là một cột mốc văn hóa, một nguồn cảm hứng vô tận. Nó phản ánh tham vọng của Nhật Bản, một đất nước từng chìm trong bóng tối của chiến tranh, nay vươn mình trở thành một biểu tượng của công nghệ và hiện đại hóa.
Những giá trị mới được tạo ra tại Expo ‘70 nhanh chóng lan tỏa, tác động sâu sắc đến nền kinh tế, kiến trúc, truyền thông và cả văn hóa đại chúng Nhật Bản. Thế nhưng, khi đi sâu vào các tác phẩm kiến trúc của sự kiện này, ta sẽ thấy một câu chuyện nhiều sắc thái hơn, nơi sự phát triển vượt bậc lại song hành với những xung đột giữa lý tưởng và chủ nghĩa tiêu dùng, giữa giấc mơ kiến trúc vị lai và thực tế kinh tế khắc nghiệt.

Triển lãm Thế giới Nhật Bản – còn gọi là Expo ’70, diễn ra tại thành phố Osaka, Nhật Bản, năm 1970.
Chuyển hóa luận và giấc mơ kiến trúc của Nhật Bản
Trước khi Expo ‘70 diễn ra, một làn sóng tư duy kiến trúc hoàn toàn mới đã xuất hiện tại Nhật Bản. Nó không chỉ đơn thuần là việc xây dựng những tòa nhà mới, mà còn mang tham vọng tái định hình toàn bộ xã hội và đô thị. Làn sóng đó có tên gọi Chuyển hóa luận (Metabolism).
Phong trào này bắt nguồn từ một nhóm kiến trúc sư trẻ tuổi, dưới sự dẫn dắt của Kenzō Tange, tại phòng thí nghiệm kiến trúc của Đại học Tokyo. Họ tin rằng các thành phố không nên là những cấu trúc tĩnh lặng, mà phải có khả năng “trao đổi chất” (metabolize) như một cơ thể sống, liên tục mở rộng, thích nghi và phát triển theo nhu cầu của con người.

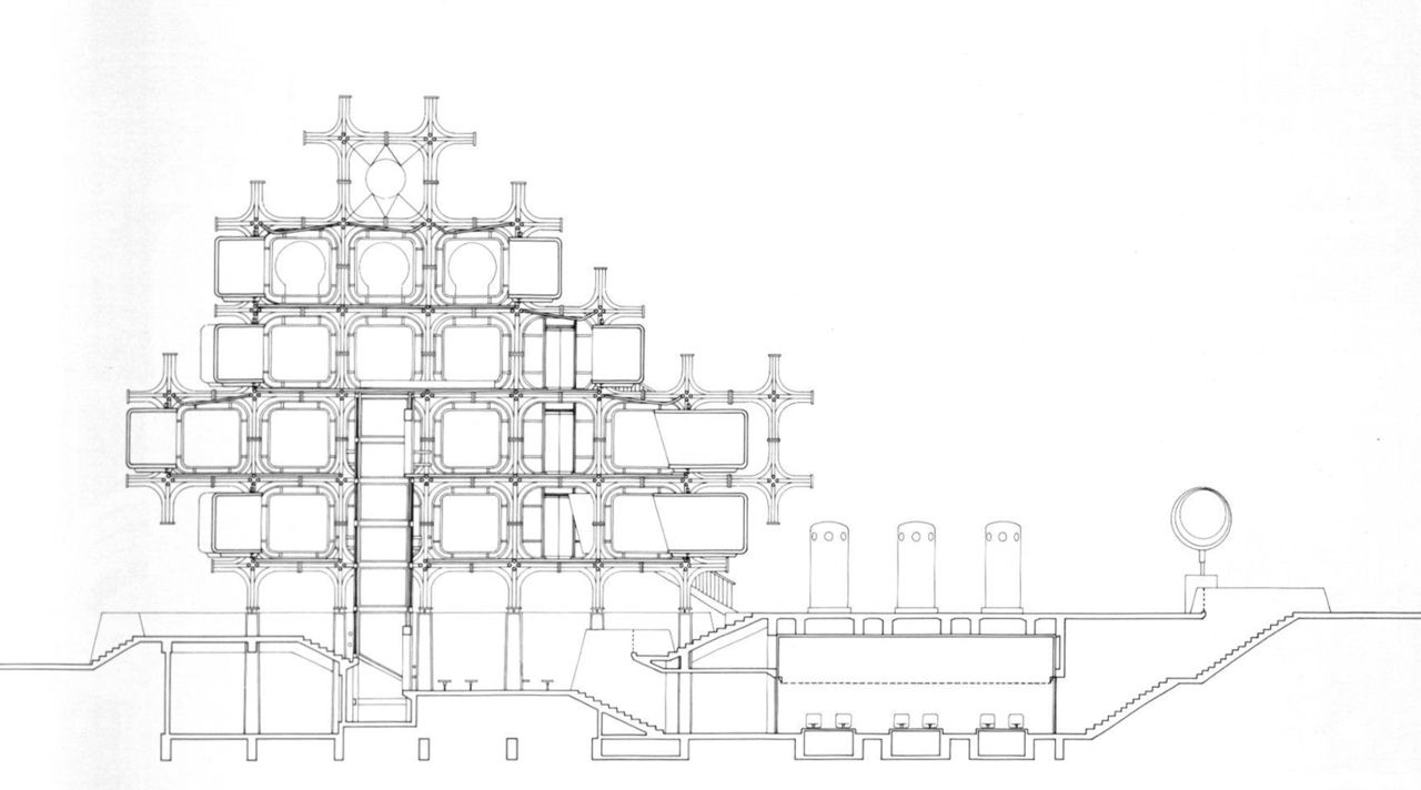
Takara Beautilion Pavilion tại Expo ‘70, thiết kế bởi kiến trúc sư Kisho Kurokawa thuộc nhóm Chuyển hóa luận

Toshiba Pavilion tại Expo ‘70, thiết kế bởi kiến trúc sư Kisho Kurokawa thuộc nhóm Chuyển hóa luận
Các dự án của phong trào Chuyển hóa luận hướng đến những công trình có thể linh hoạt thay đổi theo thời gian. Chẳng hạn như những tòa nhà mô-đun có thể mở rộng, thu nhỏ hoặc thay đổi theo nhu cầu. Các khu đô thị được thiết kế theo dạng siêu cấu trúc, trải dài trên mặt nước hoặc giữa bầu trời. Hệ thống giao thông và hạ tầng có thể tự động nâng cấp, kết nối với nhau như một mạng lưới sống động.
Một trong những dự án tham vọng nhất của nhóm chính là “Tokyo bay”, được Kenzō Tange công bố vào năm 1960. Đồ án này vẽ nên viễn cảnh về một siêu đô thị khổng lồ trải dài trên vịnh Tokyo, nơi con người sinh sống, làm việc và di chuyển trong một hệ thống đô thị được thiết kế hoàn hảo, không ngừng biến đổi để phù hợp với nhu cầu của xã hội.

Kenzō Tange và đồ án quy hoạch trên vịnh Tokyo vào năm 1961
Những ý tưởng này không chỉ mang tính khoa học viễn tưởng, mà thực sự được xem là lời giải cho những vấn đề nghiêm trọng của Nhật Bản vào thời điểm đó. Chẳng hạn như, bùng nổ dân số dẫn đến nhu cầu về nhà ở và hạ tầng không ngừng tăng. Thiếu đất nông nghiệp khiến chính phủ phải tìm cách mở rộng đô thị ra ngoài biển. Những xung đột chính trị và xã hội tạo ra nhu cầu về những đô thị có thể thích nghi và biến đổi linh hoạt.
Ban đầu, những giấc mơ này tưởng chừng có thể trở thành hiện thực. Nhưng khi Expo ‘70 diễn ra, thực tế đã đặt ra những thử thách khiến nhóm kiến trúc sư Chuyển hóa luận phải đối mặt với một sự đánh đổi khó khăn. Những ý tưởng kiến trúc mang tính cải cách của họ đã không hoàn toàn đi theo con đường lý tưởng ban đầu mà dần bị thương mại hóa, trở thành công cụ phục vụ cho các tập đoàn và chiến dịch truyền thông thay vì mục tiêu thay đổi xã hội như họ từng mơ ước.

Các gian hàng trong Expo ‘70
Expo ‘70 và một nước Nhật mới
Trước khi Expo ‘70 diễn ra, Nhật Bản vẫn đang vật lộn với bóng đen của Thế chiến II. Trong nhiều thập kỷ, đất nước này mang hình ảnh một quốc gia đóng cửa, kỷ luật khắc nghiệt và tàn dư của chủ nghĩa quân phiệt. Những tấm áp phích tuyên truyền đầy tính kiểm soát, các quy định hà khắc và sự sùng bái Thiên Hoàng đã tạo nên một không khí nặng nề trong xã hội Nhật Bản. Sau thất bại trong chiến tranh, Nhật Bản chìm trong khủng hoảng kinh tế và sự suy yếu về địa vị quốc tế. Hình ảnh của đất nước này trong mắt thế giới không mấy tích cực, một quốc gia bại trận, phụ thuộc vào viện trợ từ Mỹ và chưa thể tìm lại vị thế của mình.
Nhưng đến cuối thập niên 1960, một cuộc hồi sinh mạnh mẽ bắt đầu. Chính phủ Nhật Bản, với chiến lược tái thiết táo bạo, đã đưa nền kinh tế phát triển thần tốc, đưa đất nước từ một quốc gia kiệt quệ trở thành một cường quốc công nghệ và sản xuất. Và Expo ‘70 chính là cơ hội vàng để Nhật Bản thể hiện với thế giới một diện mạo hoàn toàn mới, một Nhật Bản hiện đại, sáng tạo và tiên phong trong công nghệ.

Tokyo phát triển một cách thần kỳ sau chiến tranh
Expo ‘70 mở cửa vào tháng 3 năm 1970 tại Osaka, với quy mô chưa từng có trong lịch sử Nhật Bản. Hơn 60 triệu người đã đổ về sự kiện này trong vòng 6 tháng, khiến nó trở thành một trong những triển lãm có số lượng khách tham quan đông nhất trong lịch sử.
Ngay khi bước vào Expo, khách tham quan sẽ thấy “Mái nhà lớn”, một cấu trúc khổng lồ bằng thép, như một bàn tay vươn ra chào đón du khách. Không gian bên trong triển lãm được thiết kế giống một thế giới tương lai, nơi các công nghệ tiên tiến nhất thời bấy giờ được trưng bày và trình diễn.

Kiến trúc điểm nhấn tại Expo ‘70 – cấu trúc “Mái nhà lớn” do Kenzō Tange thiết kế
Các gian triển lãm (pavilion) tại Expo ‘70 không chỉ đơn thuần là nơi trưng bày sản phẩm, mà còn là công cụ để các quốc gia thể hiện sức mạnh của mình trên trường quốc tế. Chẳng hạn, pavilion của Liên Xô: một công trình hoành tráng, với lá cờ đỏ nổi bật trên bầu trời, tượng trưng cho sức mạnh của chủ nghĩa cộng sản. Trong khi đó pavilion của Pháp, một thiết kế kỳ lạ như một bông hoa khổng lồ lơ lửng giữa không trung. Pavilion của Hoa Kỳ thì giống một mái vòm rộng lớn, trông như một đám mây công nghệ trôi nổi.
Không gian tại Expo không chỉ là một nơi trưng bày kỹ nghệ, kiến trúc, mà còn là một cuộc cạnh tranh về hình ảnh và truyền thông. Kiến trúc không chỉ thể hiện sự sáng tạo, mà còn phải mang tính biểu tượng chính trị và văn hóa. Nhật Bản đã thành công trong việc biến Expo ‘70 thành một cột mốc tái định hình ảnh quốc gia. Sau hàng chục năm bị thế giới nhìn nhận như một quốc gia thất bại trong chiến tranh, Expo ‘70 và các tác phẩm kiến trúc viễn tưởng của nó đã đưa Nhật Bản lên bản đồ như một cường quốc công nghệ và sáng tạo, một quốc gia của tương lai.

Robot của kiến trúc sư Arata Isozaki trình diễn tại Expo ’70

Takara Beautilion Pavilion tại Expo ‘70 với cấu kiện linh hoạt có thể lắp ráp, mở rộng và thay đổi
Chuyển hóa luận thất bại và cái giá của vẻ hào nhoáng
Dưới góc độ kiến trúc, Expo ‘70 là một cơ hội vàng để nhóm Chuyển hóa luận hiện thực hóa những ý tưởng táo bạo của mình. Những kiến trúc sư hàng đầu của nhóm được mời thiết kế các gian triển lãm cho Toshiba, Takara Belmont và nhiều tập đoàn khác. Nhưng khi triển lãm diễn ra, một sự thật phũ phàng đã dần lộ diện, những tầm nhìn kiến trúc đầy tham vọng của họ đã bị thương mại hóa hoàn toàn. Những siêu cấu trúc có thể giãn nở theo nhu cầu xã hội của Kurokawa, vốn dĩ được thiết kế để trở thành nhà ở linh hoạt, giờ chỉ còn là một gian hàng nội thất của Takara, phục vụ mục tiêu quảng cáo hơn là một giải pháp kiến trúc. Những công trình thẳng đứng xoay chuyển trên không trung, được hình dung là mô hình cho một đô thị linh hoạt trong tương lai, giờ đây chỉ còn là một tác phẩm điêu khắc thép để trưng bày công nghệ Toshiba.

Takara Beautilion Pavilion thiết kế bởi Kisho Kurokawa

Toshiba Pavilion thiết kế bởi Kisho Kurokawa
Chuyển hóa luận đã không còn là một phong trào cách mạng trong kiến trúc, mà dần trở thành một phần của nền kinh tế tiêu dùng. Đằng sau sự hào nhoáng của Expo ‘70 là một thực tế ít ai nhắc đến, cái giá khổng lồ mà Osaka phải trả để xây dựng “thành phố của tương lai”. 330 héc-ta rừng tre nguyên sinh đã bị san phẳng để tạo ra mặt bằng cho Expo. Nguồn lực tài chính khổng lồ đổ vào sự kiện này đã tạo ra một làn sóng chi tiêu vượt kiểm soát, đặt nền móng cho những vấn đề tài chính sau này.
Dù Expo ‘70 là Triển lãm Thế giới đầu tiên tạo ra lợi nhuận, nhưng nó cũng mở đầu cho một kỷ nguyên tiêu dùng không kiểm soát. Nhật Bản bắt đầu chạy theo những giấc mơ kinh tế, đầu tư ồ ạt vào bất động sản và công nghệ mà không lường trước được những rủi ro. Trong vòng xoáy đó, các kiến trúc sư của Chuyển hóa luận trở thành những ngôi sao truyền thông, xuất hiện trên TV, báo chí, và trở thành biểu tượng của sự phát triển thần kỳ của Nhật Bản.
Kenzō Tange từng xuất hiện trước toàn người dân Nhật và trình chiếu dự án “Vịnh Tokyo” trên đài NHK vào cuối năm 1960, Isozaki đứng cùng nữ ca sĩ Sumiko Sakamoto giới thiệu về các công trình trong Expo, Kurokawa ngồi trên ghế truyền hình bàn luận về mặt bằng tổng thể của sự kiện, v.v.. Và cũng như những kiến trúc sư, các công trình đồ sộ và hoành tráng của họ tại Expo ‘70 cũng trở thành các biểu tượng tràn lan trên phương tiện truyền thông đại chúng. Hàng triệu tấm ảnh phát tán trên truyền hình, báo chí, sách vở v.v. đã làm phẳng những không gian của các cấu trúc Chuyển hóa luận phi thường, và rút chúng xuống thành những hình ảnh và ý niệm đơn thuần về một viễn cảnh chưa bao giờ được chính thức đưa vào đời sống của con người, thước phim quảng cáo cho một tương lai không hề có thật.

Lễ bế mạc Expo ’70 tiến hành vào lúc 11:00 sáng Chủ nhật, ngày 13 tháng 9 năm 1970
Tuy chỉ là ảo ảnh nhưng chúng có sức hút mạnh mẽ và tạo ra sự vang vọng trong niềm tự hào dân tộc của người Nhật, tạo nên một bầu không khí lạc quan xuyên suốt đất nước mặt trời mọc những năm 70. Những hình ảnh về thế giới siêu việt, về công nghệ kỹ thuật của Nhật Bản dần trở thành một nỗi ám ảnh với chính cả các tập đoàn tư nhân lớn, đẩy nguồn đầu tư vào những bong bóng của nền kinh tế sớm tan thành bọt nước. Bữa tiệc mê man của Expo ‘70 đi đến hồi kết cũng là khoảnh khắc mở đầu cho một kỷ nguyên khủng hoảng kinh tế, nơi Chuyển hóa luận cũng trở thành nạn nhân, một cái chết của chủ nghĩa anh hùng trong quy hoạch và đô thị, vẫy vùng trong thập kỷ mất mát của vũng lầy kinh tế và sự suy tàn của một biểu tượng kiến trúc toàn cầu vào cuối thế kỷ 20.
Đỗ Quang Vũ – Vũ Anh Tuấn





